Büro Vita Aktuell
WH DH MFH Gewerbe Umbau Möbel Entwürfe Links

 

                   
              Doppelhaus Benz, Buchenbach    
              Doppelhaushälfte Willmann/Schröder, Zarten  
              Doppelhaushälfte Schwartz, Ebnet    
                 
          Doppelhaushälfte Schwartz, Ebnet    
         
         
   
             
             
             
             
             
             
             
             
             
             
          Süden    
               
               
   
 
 
 
 
 
 
 
 
 
 
 
 
 
 
 
 
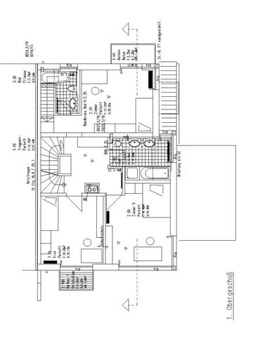
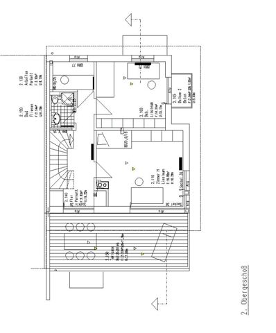
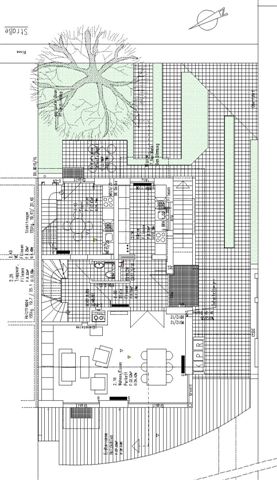
    Grundrisse            
                         
                         
               
               
               
               
               
               
               
               
               
               
               
               
          Seitenansicht          
                         
                         
  Doppelhaushälfte mit hohen Ansprüchen an Funktionalität. So beinhaltet dieses Gebäude z.B. eine Einliegerwohnung über 2 Ebenen (EG u. OG). Bei Bedarf sind die beiden Wohnungen, mit geringem Aufwand zusammenschaltbar. Darüber hinaus sind Ideen für eine Wohngemeinschaft eingeplant.