Büro Vita Aktuell
WH DH MFH Gewerbe Umbau Möbel Entwürfe Links
                     
     
Wohnhaus Willmann, Buchenbach-Ibental 
     
         
Kindergarten, Nordweil 
     
         
Gasthaus Bären, Zarten 
     
      Wohnhaus Schmudde, Kirchzarten-Burg am Wald       
     
Anwesen Fam. Pfeifle und Bäckerei, Freiburg 
     
                     
                 
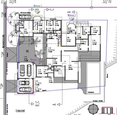
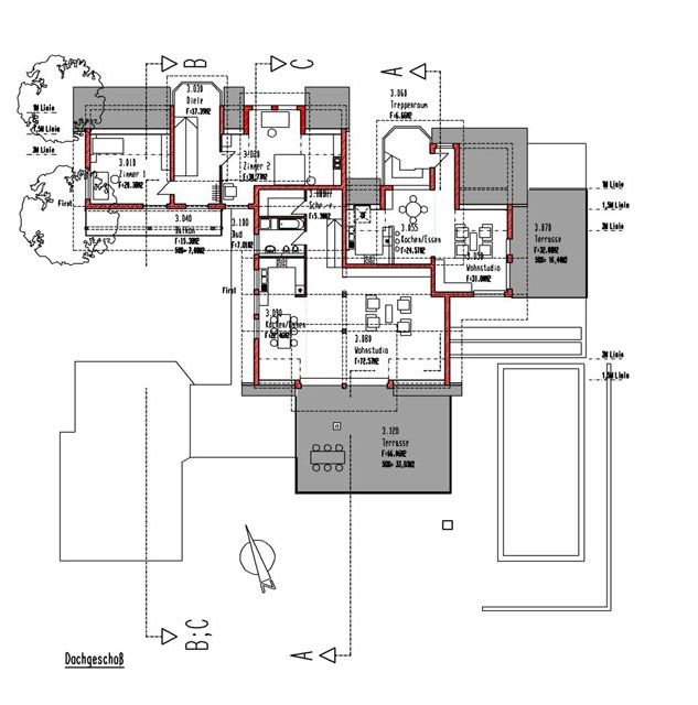
          Wohnhaus Schmudde, Kirchzarten-Burg am Wald
         
                 
               
               
               
               
               
               
               
               
               
         

Straßenansicht

 

 
           
         

Norden

 

 
               
   
   
    Erdgeschoß              
                         
       
    Dachgeschoß/Aufstockung              
                         
       
    Ansichten              
                         
                         
                         
    Die besondere Herausforderung an die Aufstockung der Flachdachvilla bestand darin, ein geeignetes statisches Konzept zu finden. Der vorhandenen Holzbalken-Flachdachdecke und der heterogenen Grundrissstruktur, konnte am besten mit der Holzbauweise für die Aufstockung entsprochen werden.